Sunreef Yachts SUPREME 68 te koop
49

Sunreef Yachts SUPREME 68

20.5 m, 2017, VALENCIA, Spanje

€2,400,000 £2,110,800
belasting betaald


Contact verkoper


Gepresenteerd door


Olivier Haroche

Barcelona Yachting
Port Olimpic - Local 14
08005 Barcelona
Spanje




Omschrijving


Automatisch vertalen:
FR



SUNREEF SUPREME 68 POWER – 2017 | CATAMARAN DE LUXE | TVA PAYÉE | PAVILLON ESPAGNOL



Le Sunreef Supreme 68 Power incarne parfaitement l’ADN du yachting moderne : volumes exceptionnels, confort absolu et navigation fluide. Cette unité de 2017, soigneusement entretenue et entièrement équipée, offre une expérience à bord digne d’un véritable superyacht, que ce soit pour un usage privé ou une exploitation en charter haut de gamme.



Visible uniquement sur rendez-vous dans une marina de la région de Valence, ce catamaran séduit dès les premiers instants par ses lignes contemporaines et ses espaces de vie hors normes. Son concept « Supreme » permet une circulation totalement ouverte entre intérieur et extérieur, avec un carré panoramique baigné de lumière et des zones de détente pensées pour la convivialité.



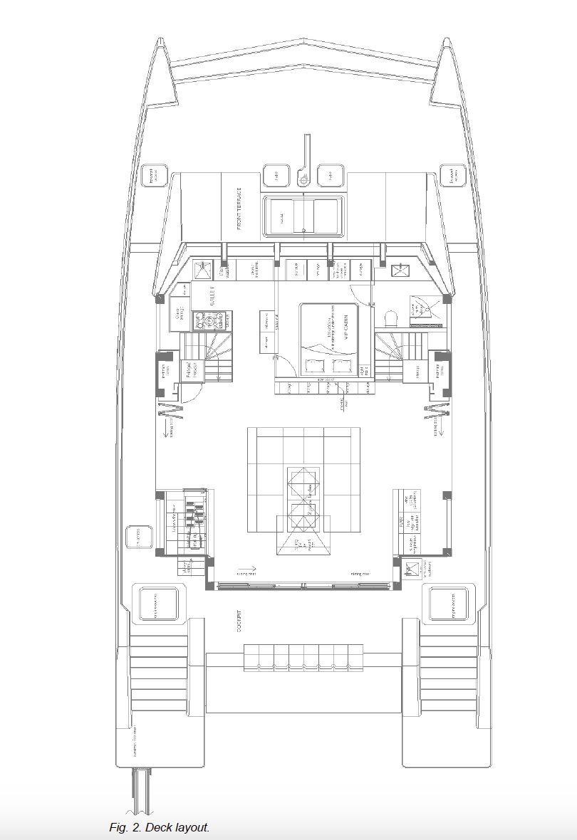
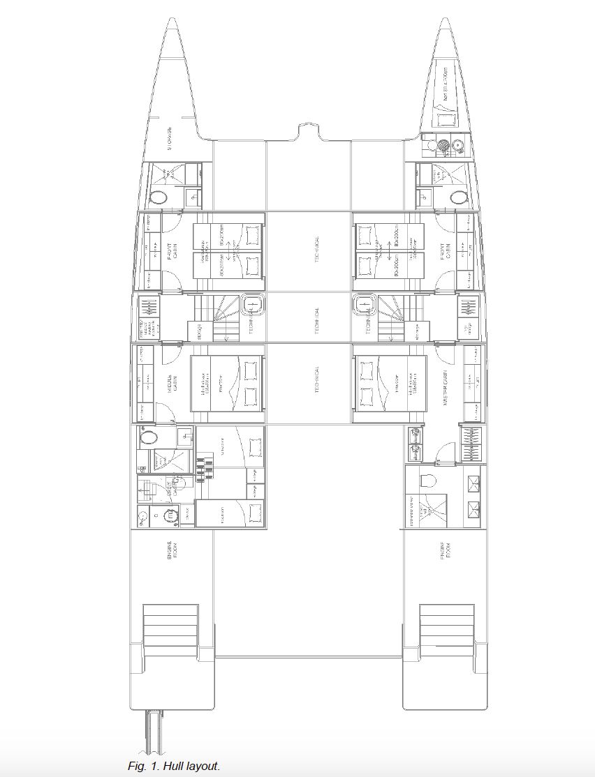
L’aménagement intérieur propose cinq cabines doubles invités accompagnées de sept salles de bain, complétées par deux cabines équipage indépendantes, garantissant intimité et confort pour tous à bord. Le niveau d’équipement est remarquable, avec notamment un jacuzzi, une cuisine entièrement équipée et des prestations équivalentes à celles d’une villa flottante.



Côté propulsion, le bateau est motorisé par deux moteurs de 500 chevaux totalisant environ 3 700 heures, associés à deux générateurs Kohler. L’ensemble assure une navigation fiable et autonome, renforcée par des équipements techniques complets incluant climatisation réversible, dessalinisateurs, propulseurs d’étrave et un ensemble électroménager complet.



La navigation est assistée par un pack électronique SIMRAD dernière génération avec radar 4G, pilote automatique, systèmes Furuno Navtex/Inmarsat et communication satellite, complétés par une connectivité moderne via Starlink pour un accès internet permanent en mer.



Pensé pour le plaisir en mer, ce Sunreef dispose également d’un équipement de loisirs très complet avec annexe semi-rigide de 4,5 m, seabobs, paddle, kayak, skis nautiques et matériel de plongée avec compresseur BAUER. Les espaces extérieurs, notamment le flybridge spacieux avec bains de soleil et zone barbecue, en font une plateforme idéale pour recevoir et profiter pleinement de chaque mouillage.



Ce Sunreef Supreme 68 Power représente une opportunité rare sur le marché : un catamaran prêt à naviguer, combinant luxe, autonomie et polyvalence.



Brochure complète téléchargeable : https://www.barcelonayachting.com/sunreef-supreme-68-power



Visite uniquement sur rendez-vous – Région de Valence



Contactez-nous pour recevoir le dossier complet, photos supplémentaires et organiser une visite.



#Sunreef #SunreefYachts #Sunreef68 #Catamaran #LuxuryCatamaran #PowerCatamaran #YachtForSale #Yachting #LuxuryYacht #Superyacht #BoatForSale #BarcelonaYachting #YachtBroker #SpainYachting #ValenciaMarina #CharterReady #YachtLife #Multihull #PremiumYachting #BoatLife





EN



SUNREEF SUPREME 68 POWER – 2017 | LUXURY POWER CATAMARAN | VAT PAID | SPANISH FLAG



The Sunreef Supreme 68 Power perfectly embodies modern yachting: exceptional volumes, ultimate comfort and smooth cruising performance. This 2017 unit, professionally maintained and fully equipped, offers a true superyacht lifestyle whether for private use or high-end charter operations.



Available for viewing by appointment only in a marina in the Valencia region, this yacht stands out with her contemporary lines and unmatched living spaces. The “Supreme” concept delivers a seamless indoor-outdoor flow, with a panoramic saloon flooded with natural light and multiple relaxation areas designed for entertaining.



The layout includes five spacious double guest cabins with seven bathrooms, complemented by two crew cabins, ensuring privacy and comfort for all onboard. The level of equipment is outstanding, featuring a jacuzzi, a fully equipped galley and amenities comparable to a luxury waterfront villa.



Powered by twin 500 HP engines with approximately 3,700 hours, and supported by two Kohler generators, she offers reliable and autonomous cruising. Technical equipment includes reversible air conditioning, watermakers, bow thrusters and a full domestic setup.



Navigation is handled by a complete SIMRAD package with 4G radar, autopilot, Furuno Navtex/Inmarsat systems and satellite communications, enhanced by onboard Starlink Wi-Fi for permanent internet access at sea.



Designed for enjoyment, she comes with an extensive range of water toys including a 4.5 m tender with 50 HP engine, seabobs, paddleboards, kayak, waterskis and a full diving setup with BAUER compressor. The outdoor spaces, especially the large flybridge with sunbeds and BBQ area, make her ideal for entertaining and relaxing at anchor.



A rare opportunity to acquire a turnkey Sunreef Supreme 68 Power combining luxury, autonomy and versatility.



Download full brochure: https://www.barcelonayachting.com/sunreef-supreme-68-power



Viewings by appointment only – Valencia region



Contact us for full specs, additional photos and to arrange a visit.



#Sunreef #SunreefYachts #Sunreef68 #Catamaran #LuxuryCatamaran #PowerCatamaran #YachtForSale #Yachting #LuxuryYacht #Superyacht #BoatForSale #BarcelonaYachting #YachtBroker #SpainYachting #ValenciaMarina #CharterReady #YachtLife #Multihull #PremiumYachting #BoatLife





ES

SUNREEF SUPREME 68 POWER – 2017 | CATAMARÁN DE LUJO | IVA PAGADO | BANDERA ESPAÑOLA



El Sunreef Supreme 68 Power representa a la perfección el yachting moderno: espacios excepcionales, máximo confort y navegación suave. Esta unidad de 2017, mantenida profesionalmente y completamente equipada, ofrece una experiencia de superyate tanto para uso privado como para charter de alto nivel.



Disponible para visita únicamente con cita previa en una marina de la región de Valencia, este catamarán destaca por sus líneas contemporáneas y sus amplios espacios habitables. El concepto “Supreme” permite una conexión total entre interior y exterior, con un salón panorámico lleno de luz natural y múltiples zonas de relax pensadas para disfrutar.



La distribución incluye cinco cabinas dobles para invitados con siete baños, además de dos cabinas de tripulación, garantizando privacidad y comodidad a bordo. El nivel de equipamiento es excepcional, con jacuzzi, cocina completamente equipada y prestaciones comparables a una villa de lujo sobre el agua.



Está equipado con dos motores de 500 HP con aproximadamente 3.700 horas y dos generadores Kohler, ofreciendo una navegación fiable y autónoma. Dispone de aire acondicionado reversible, desalinizadoras, hélices de proa y equipamiento doméstico completo.



La navegación cuenta con un paquete SIMRAD completo con radar 4G, piloto automático, sistemas Furuno Navtex/Inmarsat y comunicaciones satelitales, además de conexión a internet permanente gracias a Starlink.



Pensado para el disfrute en el mar, incluye una amplia gama de juguetes acuáticos: auxiliar de 4,5 m con motor de 50 HP, seabobs, paddle, kayak, esquís acuáticos y equipo completo de buceo con compresor BAUER. Sus espacios exteriores, especialmente el amplio flybridge con solárium y zona BBQ, lo convierten en el barco ideal para recibir invitados.



Una oportunidad única de adquirir un Sunreef Supreme 68 Power listo para navegar, combinando lujo, autonomía y versatilidad.



Descargar dossier completo: https://www.barcelonayachting.com/sunreef-supreme-68-power



Visitas solo con cita previa – Región de Valencia



Contáctanos para más información, fotos adicionales y organizar una visita.



#Sunreef #SunreefYachts #Sunreef68 #Catamaran #LuxuryCatamaran #PowerCatamaran #YachtForSale #Yachting #LuxuryYacht #Superyacht #BoatForSale #BarcelonaYachting #YachtBroker #SpainYachting #ValenciaMarina #CharterReady #YachtLife #Multihull #PremiumYachting #BoatLife








Details


Positie slechts bij benadering, niet voor aanwijzingen
Algemene informatie
Fabrikant: Sunreef Yachts
Model: SUPREME 68
Jaar: 2017
Conditie: Gebruikt
Motor
Motor: JOHN DEERE 500, 500 hp
Brandstoftype: Diesel
Afmetingen
Lengte: 20.5 m (67.26 ft)
Breedte: 10.5 m (34.45 ft)
Diep: 1.3 m (4.27 ft)
Accommodatie
Cabins: 0
Ligplaatsen: 0

Contact

info@7zea.com

Social

7zea.com on facebook

Verander land